As this proposal was of much interest to many ‘non-residents’ (aka anglers) who own holiday homes in the immediate vicinity, the full judgement is repeated below:
 Following is the judgement on the proposed service centre on the corner of SH1 & Arahori Street (Parklands motel redevelopment proposal) – consent was refused.
Following is the judgement on the proposed service centre on the corner of SH1 & Arahori Street (Parklands motel redevelopment proposal) – consent was refused.
Consent is refused for the reasons outlined in this decision but include the following:
- The proposal is inconsistent with the purpose and principles of the Resource Management Act 1991, as it will have adverse effects on the character and amenity of the ‘Riverside” area of Turangi given the policy and objective framework of the Taupo District Plan. The plan does not generally provide for commercial activities of the scale proposed, and the proposal does not contribute to the maintenance and enhancement of amenity values or the quality of the residential environment.
- The proposal is contrary to the relevant objectives and policies of the Taupo District Plan in that commercial activities of the scale and extent proposed are to be principally located within town centre environments, and that the District Plan clearly requires non- residential activities to be of a scale that maintains residential coherence and amenity; and to be compatible with the amenity and character of the residential environment.
- It is considered that the proposal will result in precedent effects that, should the application have been approved, would likely lead to adverse effects on the environment, and result in the anticipated environmental outcomes of the Taupo District Plan not being able to be achieved, in respect of the residential environment.
1. INTRODUCTION
1.1 APPLICATION
IN THE MATTER of the Resource Management Act 1991 (RMA or Act)
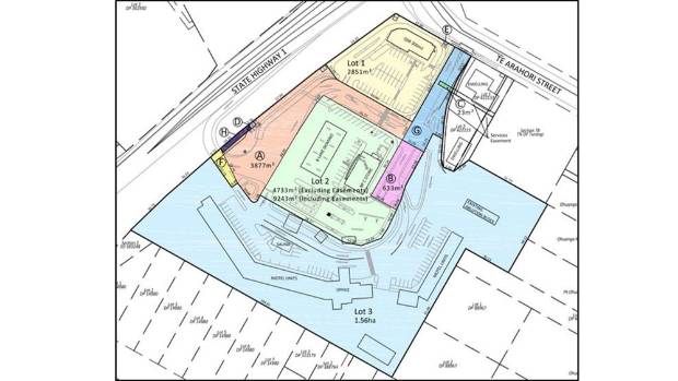
AND an application to the Taupo District Council (Council) by Holmes Corporate Trustee Ltd (the Applicant) for land use consent to establish a BP Service Station and Quick Service Restaurant and subdivision consent for a three- lot subdivision in respect of a property located at 25 Te Arahori Street, Turangi legally described as Lot 2 DP 88824, within the Residential Environment.
The applicant sought land use consent to construct and establish a BP service station and Quick Service Restaurant (QSR) and associated activities. It is intended that the existing Parklands Motel accommodation activity will remain in operation. Elements of the application include the establishment of a 24- hour, seven day a week service station incorporating a 468m2 canopy building, a 305m2 retail store and a two-lane truck stop; and a quick service restaurant (QSR) incorporating a 300m2 restaurant building and a drive through facility.
The applicant also sought consent to undertake a three- lot subdivision to accommodate the motel, service station complex and the quick service restaurant.
1.2 SITE & SURROUNDING AREA
Section 4 of the section 42A report described the site and environment as follows:
“Under the original Taupō County Council District Scheme, the application site within a larger parcel of land, the Settlers Motel site across Te Arahori Street and the land on which the New World supermarket, Z service station and Burger King are now located were zoned Turangi accommodation. In 1991 under Scheme Change 67 the zoning on the northwest side of SH1 (New World, Z service station and Burger King) changed to Tourist B and on the southeast side of SH1 (the application site and Settlers Motel) changed to Tourist A.
1
In April 1997 Land Use consent RM970020 was granted for the development of the Z service station (then Shell) and Burger King restaurant as a non- complying activity within the Tourist B zone. The site of the New World supermarket was re-zoned to Town Centre Environment through an Environment Court Consent Order in October 2005. In December 2005 Land Use consent RM050507 was granted for the establishment of the New World supermarket. When the District Plan was made operative in July 2007 the Z service station and Burger King site were zoned Industrial Environment, and the application site and whole area to southeast of SH1 was zoned Residential Environment.
The application site has been used as a commercial accommodation facility since the early 1990s and was lawfully established with planning consents granted in 1983. The required building permits have been obtained for the various buildings on the site. It is now known as Parklands Motor Lodge.”
Surrounding Area
“The defining feature in the immediate area of the application site is the busy SH1 road to the northwest of the site. SH1 adjacent to the application site has average daily traffic volumes of 5000 vehicles per day and the speed limit is 80km/hr. As such, it is a significant noise source within the immediately adjoining area. To the north of the site is the SH1 intersection with Te Arahori Street to the southeast and Pihanga Road to the northwest. The road adjacent to the site contains a central raised median island separating the north-bound and south-bound traffic to the southwest and northeast of the intersection.
Te Arahori Street is main route for traffic from the southeast side of SH1 to link to the Turangi town centre with the road being located at the intersection with SH1 and Pihanga Road to the northwest. Tongariro Road to the southwest is a cul-de-sac end does not access onto SH1. Taupahi Road is wide (40m) with wide grass verges and is mostly lined with large mature street trees. Taupahi Road accesses onto SH1 at the southern end and via Piri Road at the northern end.
The grassed road reserve to the northwest of the site, before the seal edge, is some 19m width and the carriageway width is also 19m. There are power poles within the road reserve and some vegetation to the south of the road reserve (as noted above). SH1 essentially separates the smaller eastern Turangi residential area near the Tongariro River (further to the east) from the Turangi town centre and larger residential area to the north-northwest.
Opposite the application site to the north is the Turangi town centre which is set back from SH1 and accessed off Pihanga Road. On the corner of Pihanga Road and SH1 is a large commercial block consisting of a ‘Z’ petrol station and Burger King restaurant and drive through, a New World supermarket is located to the southwest of the block and to the north is a retail outlet and café. The area around the large buildings is all in hard surfacing for vehicle parking and manoeuvring and the petrol station and Burger King restaurant are accessed via a slip lane off SH1.
To the west is Club Habitat accommodation and camping site. It is noted that there is a Land Use consent [RM150226] to redevelop this site for 72, two storey accommodation units, a spa and restaurant. This consent has not been given effect to as yet. Further north is the remaining town centre consisting of retail shops, cafes and offices. Around the town centre to the north, northwest and west is the established residential area of Turangi.
2
Adjoining to the north is Te Arahori Street which is 19m width and has a footpath along the southern side of the road leading to an underpass at the southern side of the intersection to take pedestrians / cyclists to the Turangi town centre to the west. Directly opposite the application site is a large site containing the Settlers Motel. This site also adjoins SH1 to the northwest and has its accommodation buildings clustered in the southern portion of the site with a large area of open, lawn along the northwest portion of the site.
To the east directly adjoining the entrance and loop road of the application site there are two residential sites (11 and 13 Te Arahori Street) and these contain single level dwellings. Along Te Arahori Street the remainder of the properties are residential containing mostly single level dwellings, apart from a two level dwelling on No 7. The wider area to the east and south of the application site is an established residential area containing a mix of dwelling types but mostly single level buildings with a few larger two level dwellings located along Taupahi Road and to the east of Taupahi Road. There are some undeveloped large sections immediately to the southeast (172, 178, 180, 194 and 200 Taupahi Road) and to the east (9 Te Arahori Street).
The character of this eastern residential area is standard residential. Although there are a number of accommodation activities in the area as well as a café (187 Taupahi Road), the majority of this side of SH1 is in residential development with established gardens and mature trees. The roads through this area are local roads, that are relatively ‘quiet’ with low traffic volumes, a low speed environment of 50km/hr and very little on-street parking or signage.
When travelling along SH1 from north or south there is a clear difference in character between the southeast and northwest sides of SH1. The southeast residential area consists of residential sites with small scale mostly single storey buildings, then the large, open grassed areas and mature trees of the application site and Settlers Motel site. Any signage is small and limited to the two motels and there is very little lighting of buildings and signage. Whereas the northwest commercial side has large commercial scale and style buildings, with significant signage both freestanding and on buildings, and large areas of hard surfacing for parking and manoeuvring of vehicles.”
The site is 2.78 hectares in area.
1.3 APPOINTMENT
We were appointed by the Council as independent commissioners in terms of s34A of the Resource Management Act 1991 (“the RMA”) to hear the applicant, submitters and the Council’s reporting officer and to determine the application. The information available to us prior to the hearing included the applications, assessment of environmental effects (AEE) report and other information; the submissions and a report prepared by Council’s reporting officer, being the s42A report, and expert technical evidence.
3
1.4 NOTIFICATION
The application was publicly notified on 24 May 2018 and the submission period closed on 22 June 2018.
1.5 OTHER CONSENTS
We were advised that no consents were required from the Waikato Regional Council. 1.6 ACTIVITY STATUS
We were advised that the proposal should be considered as a discretionary activity. Activity status is discussed in section 6.3 of Ms Wood’s report and we concur with her analysis and conclusions reached.
1.7 DEFINITIONS
In this Decision we use the following terms:
AEE
Applicant City/District Plan RMA
2. HEARING
– Assessment of Effects on the Environment report
– Holmes Corporate Trustee Limited
– Taupo District Operative District Plan
– Resource Management Act 1991 and its amendments
The hearing was conducted on 29, 30, and 31 August 2018 in the Turangi Senior Citizens Hall, Turangi. Appearances were as follows:
2.1 APPLICANT
- Mr James Winchester/ Ms Charlotte Coyle -Counsel
- Mr Ryan Holmes -Holmes Group- Applicant
- Mr John Chandler- BP
- Mr Bodo Hellberg- Stormwater Consultant
- Mr John Kofoed- Lighting Consultant
 4
- Mr Mark Apeldoorn- Transportation Consultant
- Mr James Bell-Booth- Acoustic Consultant
- Mr Tim Heath- Economic Consultant
- Mr Dave Mansergh- Landscape Consultant
- Mr Andrew Wood- Planning Consultant
2.2 SUBMITTERS
- Holmes Proposal Opposition Group
- – Ms Sarah Ongley – Counsel
- – Mr Stephen Brown – Landscape Architect
- – Ms Christina MacIntyre – Committee Member Holmes Proposal Opposition Group
- – Mrs Mary Nisbet
- – Mrs Willow Salvador
- – Mr Roger Webb
 
- New Zealand Transport Agency
- – Ms Natalie Amos – Counsel
- – Ms Tammy McMahon – Planner
- – Mr Robert Swears – Transport Consultant
- – Ms Karen Boyt – Manager, System Management, Waikato
 
- Mr Tim Edgler & Ms Roz Thompson
- Ms Jen Shieff
- Tui Lodge – Mr Ian Douglas & Ms Frances Jenkins
- Mr Dan & Mrs Prue Stevenson
- Turangi-Tongariro Residents & Ratepayers Assn. Inc – Mrs Sandra Greenslade
- Mr Paul & Mrs Jane Clements
- Mr Graeme Nahkies
- Mr Steven Howard
5
- Grant Motels Limited – Mr Andrew Hocken
- Mr Kyle Miller for Mr T O’Brien
- Ms Paula McRae
- Mr Wayne SmithWe received a statement which was tabled at the hearing from Beca who were acting for the NZ Fire Service who had decided not to appear at the hearing. We have considered that statement as part of our overall consideration of matters.We provided Ms Ongley an opportunity to comment on the roundabout proposal after NZTA had presented its evidence given it was not part of the application.
2.3 COUNCIL
- Ms Louise Wood – Planner & s42A Reporting Officer
- Mr Alistair Gray – Traffic Consultant
- Mr Mike Keys – Services Consultant
2.4 SITE VISIT
We conducted a site visit prior to the hearing on Tuesday, 28 August 2018. Only commissioners undertook the site visit and no other parties were in attendance. The commissioners undertook a further site visit on Friday, 31 August of the wider ‘Riverside’ area including the Tongariro River.
2.5 DIRECTION
At the conclusion of the hearing, we adjourned it as we had requested that the right of reply be in writing, and subsequently issued a direction in respect of the process and timetable to apply if we had questions in respect of the written right of reply, which we received on 6 September 2018.
In any event commissioners had no questions and the right of reply was deemed to have been completed on 10 September 2018.
2.6 CLOSURE OF HEARING
We formally closed the hearing on 21 September 2018.
6
3. SUBMISSIONS & MAIN ISSUES RAISED
103 submissions were received to the proposal with 78 submissions in support and 25 submissions in opposition. One submission (No 103) being from Frank and Carol Harwood, was received after closure of the submission period, and we were advised that neither the Council nor applicant had any objection to us accepting the submission for consideration. The submission did not raise any additional matters that had not already been raised by other submissions.
Accordingly, we have resolved to waive compliance with the submission closure timeframe and accept the submission. We do so pursuant to s37 and s37A of the RMA on the grounds that the submission from Frank and Carol Harwood, was received on 29 June 2018 being only an extension of 5 working days. The submission did not raise any issues not already raised in submissions received within the submission period and neither the Council nor applicant opposed acceptance of the submission. Such a waiver meets the requirements of s37A(1) of the RMA.
The s42A report noted that two submissions in support were received being numbers 32 and 33 being from people who had also given written approval to the proposal (11 Te Arahori Street). As the effects on people who have given written approval must be disregarded given section 104(3)(a)(ii) of the RMA, their submissions must be disregarded, and we do not consider them any further.
Due to the number of submissions, the submission summary is contained in Attachment 1 to this decision.
The submissions in support highlighted the following matters:
- Economic benefits for Turangi
- Employment creation
- Enhancing the entrance to Turangi
- Increase visitors into Turangi town centreThe submissions in opposition highlighted the following matters:
- Adverse traffic safety effects
- Adverse impacts on residential character and amenity from 24/7 commercial nature ofthe proposal; the volume of traffic and associated nuisance effects; incompatibility of theactivity within the residential area
- Adverse impacts on Turangi town centre businesses
- Adverse health and social effects from emissions (service station) and from proposed QSR
7
The section 42A report outlined that the applicant had submitted an amended plan showing a proposal for a roundabout to be constructed at the State Highway 1 and Te Arahori Street/ Pihanga Road intersection. We note that this proposal had been received by the Council after the submission period had closed and that submitters were not aware of it when preparing submissions.
Given this situation we allowed submitters to comment on this matter as part of the hearing.
4. STATUTORY PROVISIONS CONSIDERED
In considering the application, we have had regard to the matters set out in section 104 of the RMA, recognising the status of the activities as we have determined as a discretionary activity. Activity status is discussed in section 1.6 of this decision.
We have had regard to the provisions of the District Plan and to Part 2, being the purpose and principles of the RMA. Discussion in respect of our consideration of Part 2 matters given relevant case law provided to us at the hearing, is outlined in section 11 of this decision
In respect of a discretionary activity, section 104B of the RMA states that a consent authority may grant or refuse consent and if granted, conditions may be imposed under section 108 of the RMA.
5. PERMITTED BASELINE CONSIDERATION
Section 104(2) allows the Council to disregard any adverse effects on the environment where the plan permits an activity with that effect (the ‘permitted baseline’). The proposal involves numerous District Plan infringements and is comprised of non-residential activities on a Residential Environment site.
Ms Wood believed an assessment of permitted baseline in respect of the subject site was not considered appropriate. The applicant through evidence did not propose consideration of the ‘permitted baseline’.
We have considered this matter and concur with that view.
6. PRINCIPAL MATTERS IN CONTENTION
Having considered the application, submissions and evidence provided, and being guided by the assessment criteria of the District Plan, we consider that the principal issues of contention are:
8
- Effects on residential character and amenity
- Noise effects
- Transportation effects including proposal for roundabout
- Visual effects
- Outlook & privacy effects
- Hazardous substances
- Business distribution
- Earthworks / construction
- Infrastructure / servicing
- Subdivision
- Positive effects
7. SUMMARY OF EVIDENCE
The following summary is not intended to be a full coverage of all matters raised at the hearing. Relevant parts of the evidence presented by the parties are referred to in the Main Findings section of this decision, where it forms a component of the findings by us, in deciding the application.
7.1 APPLICANT
• Mr Winchester outlined that the proposal will have substantial benefits for the Turangi community and the wider public. In his opinion, the adverse effects of the development are related to perception and the question of whether the effects are adverse depends on value judgements.
The submitters and the Council’s s42A report make value judgements about the character and amenity of the application site and its surrounds. The site is optimally located for the proposed development irrespective of what the zoning is as the site does not exhibit normal or typical residential characteristics. The existing open appearance of the site and the location and influence of State Highway 1 (SH1). In his opinion, it was neither feasible nor realistic to consider that it would ever be developed for the zone purpose.
9
In his opinion, the proposed development is logical and responds to a need. It would perform a strategic purpose for the southbound users of SH1 and would increase the resilience of fuel supply. In his opinion, the opportunity for travellers to stop and refuel, rest and eat before heading opt the Dessert Road is an important consideration. The proposal would bring both an economic benefit and increase the safety of SH1.
It is not reasonable to suggest that this development would have any material impact on people’s perception of Turangi and its character and amenity. In his opinion, NZTA had failed to engage through the process and design issues had not been able to be resolved prior to the hearing. In his opinion, there were no barriers to granting consent and no reasons why consent should be declined.
- Mr Holmes stated that Turangi is a town in need of economic activity and the proposed development will add business activity without affecting the town centre. It would ensure a safer and more convenient entrance to the town centre to encourage visitors to stop. The land is not economically feasible to develop for residential purposes.He stated that the current intersection layout means it is difficult for tourist and transient traffic to access Turangi. There is a demand for fuel products in Turangi from tourist traffic. He states that there is the potential for Turangi to become the infrastructure development/ service hub for the all year $100m gondola upgrade at Whakapapa and a ‘Park and Ride’ option for the Tongariro Crossing. This would increase the demand.If granted, the construction should commence in early 2019, resulting in a relatively instant capital injection. The project will have substantial benefits, in his opinion, for the following reasons:
- – Economic and employment benefits to the town.
- – Would enable a roundabout to be installed which would result in improving the traffic environment.
- – The Z service station (on the opposite side of the road) has ran out of fuel during peak tourist times.
- – 75% of the submissions are in support.He outlined that the Holmes group was committed, upon grant of consent, to putting $5,000 towards preparing local applicants for work by assisting with CV writing or interview coaching.The applicant has engaged in a substantial consultation programme and has the full support of Ngati Turangitiukua.
 
- Mr Chandler outlined the BP ethos. He stated the site was an identified location that would meet the needs of the travelling public along with commercial truck drivers. It
10
would serve as a logical rest and fuelling stop before heading further south across the Desert Road.
In his view, the proposed new facility would serve a strategically useful purpose for the travelling public and commercial transport operators. The development would provide employment and benefit to the Turangi community.
BP has a Design and Operational Standards which outlined the approach taken by BP and the regulations that the company adheres to. The buildings would be designed to improve energy efficient including (but not limited to) LED lighting and collecting rainwater from the roof top.
He stated that odour would not be emitted from the site as service stations were designed to ensure vapours are contained. The site would be landscaped, and onsite staff would maintain both the building and the grounds to present a high standard to customers and the surrounding environment.
The option of locating the development in the Town Centre or on the Industrial Zoned land further south was not considered due to it being located at the southern end of town with no visibility and no direct access to SH1.
- Mr Hellburg outlined that the proposed stormwater drainage for the proposed facility has been based on a concept layout, and no final platform levels or grading of the proposed site were available at the time of concept development.He outlined the presumptions made when he undertook the concept design. The preliminary stormwater management concept was designed to meet all relevant regulations to avoid and mitigate detrimentally effects to the receiving environment.The level of service of the proposed drainage system is in accordance with the TDC Code of Practice which requires a primary drainage system to safely drain runoff up to the 10- year ARI storm event. Runoff exceeding this capacity is discharged to the existing secondary stormwater system (overland flow path).The site-specific hazards of fuel service station are regulated on a national level by MfE. The preliminary design is in accordance with the relevant regulation and proposed the required measures to avoid accidentally spilled hydrocarbons entering the environment.
- Mr Kofoed stated that the proposed lighting for the new service centre has been designed to comply with the District Plan performance standards for artificial lighting in the residential environment.
11
The calculated levels of additional light at the boundaries are less than the maximum allowable level of 8 lux and in most cases less (3 lux to less than 1) ensuring that there is no loss of amenity to local residents.
Mr Kofoed noted that the SH1 side of the road has an existing high level of ambient night lighting from the intersection road lighting, in particular the Z Energy and co located QSR. The proposed development will have a similar lighting arrangement to this commercial development on the opposite side of the road. The development will have a reduced visual impact (when compared to Z Energy and the QSR) as it will be set further back on the site and spread over a larger area of land.
• Mr Apeldoorn stated that the local road safety environment is typically safer than other similar locations in New Zealand when assessed in terms of the recorded road crash history. Notwithstanding this, there is a significant potential risk environment which at the SH1/Te Arahori Street/ Pihanga Road intersection which has been identified as a sub- standard intersection. The intersection at peak times results in adverse delay conditions for local road traffic seeking to access or cross SH1.
The state highway typically carries in the order of 5,000 to 6,000 vehicles per day and is assessed to be operating at about 25 – 35% capacity. Te Arahori Street caries about 970 vehicles per day.
The traffic generation analysis included a survey of the existing similar activities opposite the site, a survey of the local road and intersection environment and further trip generation surveys. He forecasts that there will be an increase of 30% of all passing traffic which would result with the proposal. This equates to about 300 vehicles/ hour in the peak hour.
The safety assessment and with consultation with NZTA, a preferred mitigation in the form of a roundabout is proposed. The capacity of the roundabout has been assessed on the basis for a high growth forecast for 10 years. It is also expected to improve the forecast incidence of death and serious injury incidents from one every 5 to 6 years to about one every 50 years.
Pedestrian safety both within the site and with respect to the traffic environment has been assessed. The proposed layout in the form of a Pedestrian Management Plan will ensure pedestrian safety.
The potential traffic effects in the wider community have been assessed and in summary they will be either nil or negligible.
12
- Mr Bell-Booth stated that the existing noise environment is dominated by state highway traffic and local roads around the site. Other ambient noise included the commercial activities opposite the site and operational activities on the subject site and typical residential activities within the surrounding environment.The acoustic character of the existing noise environment was typical of a residential area near a main road. He considered that the District Plan noise limits were appropriate. The predicted noise levels from on-site vehicles all comply with the noise limits. The predicted level from operational activity would typically be at or below the existing measured ambient sound levels.With appropriately designed attenuation, it is practicable to design and locate the mechanical plant such that it generates a level of sound low enough to ensure the cumulative sound level complied with the District Plan. The construction noise limits for most activities would be met.The potential vibration caused by trucks using the cross-over would, in his opinion, be insignificant.
The impacts on the landowner at 24 Te Arahori Street have been mitigated by a proposed barrier which provides a reduction of 5 decibels. This is a level which is less than the ambient sound level and the proposed activity would only be occasionally audible. Noise nuisance from vehicles on the site would not have a noticeable effect on Te Arahori Street, and that the acoustic character of the area would not change. 
- Mr Heath outlined that the proposal would result in an initial economic injection of $2.6m and employment generation of 42 ECs (employment count as defined in paragraph 16 of Mr Heath’s evidence in chief) during construction phase and on-going operational benefits of $4m per annum and employment generation of 43 ECs. He noted that this was meaningful in the context of Turangi.The economic benefits generated as a result of the development are intrinsically linked to the site and its direct SH1 profile. This economic benefit cannot be transferred onto another site. The developments primary target market is drive-by traffic.Turangi has an unemployment rate of nearly 12%. Turangi’s employment is based on service provisions and the public sector. The provision of additional jobs is a fundamental economic strategy.
13
There may be inconsequential trade competition effects, these have no commercial ability to flow on into wider retail distributional effects in the context of the RMA.
In regard to Plan Changes 28-33 of the TDP, Mr Heath’s view was that they are designed to set up a policy framework to better manage potential effects of new development in the district and the distribution of retail and business activity within Taupo. They were not designed to restrict new development in appropriate locations (such as proposed) and should not be interpreted as framework to channel all new retail development into centres.
The location of the proposal on SH1 is entirely logical, economic benefits are not transferable and Mr Heath did not consider that other zoned locations elsewhere in Turangi are genuine substitutes.
• Mr Mansergh stated that the proposed development would have a notable effect on existing landscape and urban character of the site. The effects on the existing visual amenity will be limited to a relatively small visual catchment.
He outlined that the site was characterised by its current park-like appearance and the large buildings (accommodation) it contained. The character of the site is influenced by three different adjacent landscape character areas and its visual connections with the commercial areas to the north. The size of the site and the buildings on it have more in common with the accommodation and commercial areas on the northern side of SH1 than the adjacent residential areas.
In his opinion, the effects on existing landscape character and visual amenity would be greatest when viewed from the north of SH1. The proposed development including commercial frontages of the buildings, signage and light would be directed to the north. He considered that the viewing audiences to the north are likely to be less sensitive to any loss of amenity associated with the existing park- like open space.
The effects on the landscape character and visual amenity when seen from the wider surrounding residential neighbourhood would be much lower. This is because of a combination of restricted viewing opportunities into the site from the south and east due to intervening buildings and vegetation. Higher effects would only occur for a few neighbours with direct views of the buildings and for viewers at the western end of Te Arahori Road. Viewing audiences in these locations are likely to be more sensitive to any change in character and visual amenity.
He noted that SH1 formed a linear boundary between commercial developments associated with the town centre and the residential environment. In his opinion, this did
14
not prevent the commercial development from influencing the landscape and urban characteristics of the site, rather SH1 acts as a spatial buffer providing clear views between the two areas.
In his opinion, the character of the site will change substantially, but this change will only be seen from a relatively small visual catchment. With the aid of the proposed mitigation, the sites open spatial characteristics will be partially maintained.
• Mr Wood stated that he believed most parties agreed with the nature of the wider character and amenity values of Turangi Township, Turangi Town Centre and the residential area southeast of SH1. The only point of contention between the two parties’ opinions relates to the character and amenity values of the site itself and the sites general area in close proximity to SH1.
He stated that the site does not exhibit strong residential character and amenity values. It is larger than a typical site size, contains commercial activity and is heavily influenced by SH1. He does not believe the site has residential character and amenity by virtue of its zoning.
The proposed roundabout will reduce crash risk by approximately 10 times. He stated that he believed Ms Boyt, Ms McMahon and Mr Swears had incorrectly interpreted his evidence. He clarified that without the proposal, no upgrade to the intersection is proposed and the existing crash risk remains.
Mr Wood did not consider that the establishment of a service station and quick service restaurant (QSR) will generate material effects on the wider residential character and amenity values of the area southeast of SH1 or Turangi. The effect on Te Arahori Street can be mitigated.
He outlined that the proposal was in accordance with the RMA as it represented appropriate use of an underutilised site, rendering an efficient use of existing resources. The proposal does not compromise the integrity of Part 2 of the RMA. He acknowledged that the proposal does not entirely align with every objective and policy of the TDP, but when they are considered as a whole the proposal is not inconsistent with them.
7.2 SUBMITTERS
• Ms Ongley as counsel for the Holmes Proposal Opposition Group outlined in her submissions that the Taupo District Plan did not provide for the large-scale commercial activity to establish in the Residential Environment. Further, it is the cumulative effects of the various non-compliances that combine, to make it evident that the activity is not
15
in keeping with the character of the eastern side of Turangi, or the objectives and policies for the Residential Environment zone.
She outlined that in respect of the Court of Appeal decision in Davidson Family Trust v Marlborough District Council [2018] NZCA 316 it was still relevant to analyse the prescriptive nature of the provisions of the relevant planning document. Strongly worded objectives and policies carry more weight, and as noted by the Supreme Court in King Salmon, planning documents that have been carefully crafted, and which have undergone an intensive process of evaluation and public consultation cannot be given lip service.
She further noted that the decision-maker is not prohibited from considering Part 2 in the context of the planning application, although the Court of Appeal says that if the Operative Plan has been prepared having regard to Part 2, absence in referring to Part 2 would not add anything to the evaluative exercise. Absence of the plan being prepared in a manner that appropriately reflects the provisions, the consent authority will be required to give emphasis to Part 2.
Ms Ongley outlined that the District Plan, including recent plan changes had been prepared under the Act and having regard to Part 2. Therefore, the plan already provides a vision for the level of social, cultural and economic wellbeing anticipated in the town. She noted that the evidence of Mr Holmes stated that the proposal would assist the Turangi community ‘achieve its vision for the town’. However, she stated that the vision for the town was outlined in the planning documents.
Ms Ongley specified relevant parts of the plan which relate to the expectations of the HPOG within the residential environment. As the development does not meet some of the performance standards within the zone, these can become nuisance factors and can cause adverse effects.
In her opinion, Policy 3a.2.1(ii) was relevant as the Applicant’s proposal is not a small- scale home-based employment opportunity or a local community facility. In this case, several controls are proposed to be exceeded to a significant degree, indicating the scale of the proposal is inappropriate in the Residential Environment, and that it is inappropriate to dismiss these nuisance levels.
Mr Brown’s evidence referred to the concept of aesthetic coherence, contained in the Act’s definition of ‘amenity values’, and in the decision in Blue Skin Energy Ltd v Dunedin City Council [2017] NZEnvC 150. This decision indicates that it is necessary to consider the qualities and characteristics that contribute to people’s appreciation of the area’s pleasantness and aesthetic coherence.
16
The additional service station and quick service restaurant serves as a cumulative effect, because the ‘Z’ station and fast food outlet already exist at the entrance to Turangi town. Ms Ongley suggested that little weight should be given to the evidence that there are no other reasonable uses available for this site as it is not an application under section 85 of the Act.
Case law states that the decision – maker is not bound by those opinions on amenity values but must apply the law objectively. By focusing on the area that is ‘actually’ affected by the proposal the decision maker is considering the effects in a ‘vacuum’. The decision maker must also draw upon the views of the local community.
- – Mr Brown outlined his concerns with the applicant’s AEE. Specifically, the absence of an assessment of the landscape and amenity effects and the quality of images provided by Greenscene in response to Council’s s92 request.He raised concerns regarding Turangi’s existing environment stating that the town is more than a ‘pit stop’ on SH1. The residential area between SH1 and the Tongariro River has a range values that pertain to both its role as a residential neighbourhood and as a destination for a variety of tourists. The values and characteristics of the residential area include a passive, tranquil, quiet residential environment. The level of amenity is not easily understood from commuter traffic.Mr Brown acknowledged that not all residents would be affected equally by the proposal. The residents close would be exposed to the commercialisation proposed and the associated effects of this. Te Arahori Street is a link road for local traffic to and from the town centre. He considers that the combined commercial centre would have wider implications for Turangi. It would exacerbate the concept of it as a ‘pit stop’ town on the way to somewhere else, rather than support its growing emergence as a destination in its own right. This translates into having a wider effect on the community as well as the residents within close proximity.He stated that the Blueskin Bay and Long Bay decisions state that an assessment of visual effects simply sets the foundation for exploring the changes to landscape character and amenity values associated with such change. In his opinion, Mr Mansergh has not addressed these fundamental issues.
- – Ms MacIntyre outlined that the Holmes Proposal Opposition Group Inc (HPOG) had been established in September 2017, and that its purpose was to oppose the proposal. She noted that membership had been restricted to those residing in the ‘Riverside” area of Turangi. We were provided with a membership list; a copy of a petition; an aerial photo noting the location of society members; and a document that outlined the purposes of the society and the concerns it had regarding the proposal.
17
- –  Mr Webb noted that he resided at 1/26 Tongariro Road backing onto the Parklands Motel site and that four years ago had bought the section and built their dream retirement home. In his opinion, from this development, they now face:o Light spillage above the height of the motel and will experience this 24/7. o A change in character from the existing ambient noise environment.
 o A change in character to the anticipated residential environment.Since joining HPOG he had become aware of the proposed roundabout. This may resolve traffic congestion within the area but does not change his position on the proposal. He believed that the neighbourhood would change substantially.
- – Ms Salvador stated that she resided on the corner of Tuapihi Road and Te Arahori Street. She has grown up in Turangi and her family have been long term residents. She believes that the proposal will change the character of the area and affect the amenity she enjoys from her dwelling and surrounding residential environment.Safety was one of her main concerns as the development would increase the activity around the neighbourhood to a level undesirable for children. The visual, noise, light and operating hours would change the character of the area.
- – Ms Nisbet outlined that she was an active member in the Turangi community and has family ties to the area. She enjoyed cycling, running, walking and mini triathlons. In her opinion, Turangi was the perfect location to enjoy these activities. The local environment is peaceful, has open space and is a safe community.Ms Nisbet did not believe the location is suitable for the proposed development. She believed that the location would have a negative impact on safety, the river, the surrounding environment, and health and wellbeing.
• Ms Amos as counsel for the NZ Transport Agency outlined the scope of evidence to be presented by their witnesses, including various legal matters in respect of the RMA.
The NZ Transport Agency position is that the applicant has failed to demonstrate that the proposal’s effects on the safety and efficiency of this section of State Highway 1 will be adequately avoided, remedied or mitigated. She acknowledged that the conditions proposed significantly address the TA’s concerns, however in the absence of a final design they believe a better approach would be to decline or put the application on hold to allow the applicant to undertake further work in relation to the roundabout and safety matters.
The Agency remained concerned about the ability to fit a safe and efficient roundabout within the existing road reserve.
18
In reference to Ms Wood’s section 42A report, she noted that there was no assessment of the proposal against the Waikato Regional Policy Statement (RPS). Ms Amos outlined that Ms McMahon had concluded that the proposal was inconsistent with the policies and objectives of both the RPS and the Regional Plan.
She also noted that in Mr Swears evidence he stated that in the last five years, the safety and efficiency components of the intersection have not raised any significant concerns for the NZ Transport Agency to consider and as such, any improvements to the intersection required to mitigate the proposal are likely to require funding by the applicant.
− Ms McMahon stated that the Agency’s concerns specifically relate to transportation, pedestrian access across State Highway 1, landscaping and fencing, and lighting and signage matters.
She proposed a set of amended conditions in section 8 of her evidence that she recommended be included should consent be granted. She believed that the amended conditions needed to be in place to ensure that the proposal is consistent with the policies and objectives of the Waikato Regional Policy Statement and the Taupo District Plan. She also believed that without these amendments, the proposal was inconsistent with Part 2 of the RMA but noted that these are for different reasons than those stated in the section 42A report, and covered matters relating to safety and transportation effects.
She also noted that the proposed roundabout was necessary to mitigate the effects of the proposal rather than to address any existing safety issue.
The safety of pedestrians crossing State Highway 1 at grade was a significant concern for the Agency. In her opinion, it was not clear what measures would be put in place in relation to the underpass to ensure that it is used by pedestrians.
Ms McMahon noted that the landscape planting plan had been amended to include the earth bund and additional planting and that sightlines for vehicles at the intersection must not be compromised by landscaping, planting or acoustic fencing. Adequate sight distances must also be maintained at any access point including the State Highway.
The lighting associated with the site must be orientated away from SH1 and the local roading network and she was satisfied that the applicant could achieve that. The Agency has concerns regarding the amount of signage proposed on the road frontage, which includes individual signs for the three separate activities on the road frontage.
In her view, consent should not be granted to the proposal for the reasons outlined above and for the reasons set out in Mr Swears’ evidence.
19
• Ms Boyt outlined the objectives and function of the NZTA and that the Agency’s objectives and responsibilities are derived from the Land Transport Management Act 2003. The Agency is involved as they are a Crown entity with the sole powers of control and management for all purposes in respect of state highways.
The Government Policy Statement on Land Transport is issued by the Minister of Transport. The Government’s priorities for land transport funding are; a safe system free of death and serious injury, improved access to move towards liveable cities, enables better environmental outcomes, delivering the best value for money possible.
The Agency was required to follow due process in the form of a business case approach prior to committing and allocating any funding for projects. She stated that her key area of focus was to ensure that any upgrades or changes to the state highway are properly assessed.
– Mr Swears, Transport Consultant for the NZTA, considered that it was undesirable to establish a commercial activity such as the proposal in respect of the subject site. He did not agree with some of the parameters and modelling described by Mr. Apeldoorn and is concerned that any proposed design solutions to address safety and efficiency matters could be compromised.
He outlined in his supplementary evidence that sufficient design work had not been undertaken to confirm that the construction of a suitable roundabout in this location is feasible. He was of the view that the potential for the proposal to promote grade pedestrian movements across the State Highway remained.
Mr Swears agreed that the matters regarding the left turn slip land could be addressed at the design stage. The conditions proposed would ensure that this occurs. He raised concerns about the roundabout design as the commissioners were being asked to make design compromise decisions for a roundabout at the intersection. There was also some uncertainty around the feasibility of fitting the necessary roundabout design within the existing road corridor and where private land acquisition would be necessary to achieve an acceptable roundabout design solution.
In respect to the pedestrian underpass, he had concerns regarding the safety and the proposed length. He also noted that the proposed signage, landscaping and lighting were potential distractions to highway users.
• Ms Shieff spoke on behalf of herself and Ms Macdonald. She noted the pride they had in Turangi’s special character and in particular that area between SH1 and the Tongariro
20
River as a special residential area. This was reflected in there being dwellings, motels, lodges and the Creel Tackle Shop and café.
Ms Shieff was concerned that the proposal did not accord with the District Plan which envisioned a consistent scale of non-residential buildings and activities that maintain residential coherence and amenity. She was of the view that the proposal would change the visual and amenity values of Turangi in an undesirable manner.
In addition, she expressed concerns about noise and that noise from vehicles using the site, mechanical services and the humming of truck refrigeration units would all contribute to noise that cannot be mitigated.
Ms Shieff outlined concerns about business distribution effects, that the proposal will result in the town centre losing some existing business and that there will be less incentive for road users to visit the township.
Stormwater disposal was also a concern and the risk of waterway contamination.
Ms Shieff outlined concerns regarding transportation effects and considered that even with a roundabout, traffic and pedestrians cannot be adequately separated as they approach the subject site. In addition, the proposed extension to the underpass does not address pedestrian safety as pedestrians approach the site and the pedestrian island on Te Arahori Street will not be safe for pedestrian use.
- Mr Edgler presented in opposition to the proposal. Mr Edgler and Ms Thompson have a holiday home in Taupahi Rd and are based in Wellington. Mr. Edgler presented a video at the hearing of trucks idling and parked at the Z station and took the panel through sound recording data that he had collected on a hand- held device. Mr. Edgler’s primary concern relates to noise and he questions the assessment approach undertaken by MDA. He believes that noise data averaged over a period of time, does not reflect the true nature of the noise and that any noise assessment should contain a description of sound quality.
- Tui Lodge – Mr Douglas and Ms Jenkins (with support from their daughter Pauline) presented in their capacity as owners and occupiers of the Tui Lodge, a bed and breakfast in Taupahi Rd.Mr. Douglas and Ms. Jenkins opposed the proposal. Their property is relatively close to the boundary of the proposed site. They explained that as a family they have spent over 19 years developing Tui Lodge to attract native bird life and connect native areas, attributing their success as an accommodation provider to the park like grounds that they have established. They are concerned that the peaceful, natural character of the area will be impacted negatively by the proposed development.
21
- Mr & Mrs Stevenson – Mr. Webb presented a statement on behalf of the Stevenson Family who have had a property in Te Aho Road since 1948. The issues raised in the submission were based on similar grounds to the majority of submitters who live in the “Riverside” area and who are opposed to the proposal. They also noted in their statement that they do not believe that it is acceptable that the final design of the proposed roundabout is determined after the hearing. They based this view on the premise that there is inadequate information to determine the application and that objectors have the right to know and make submissions on an actual proposal and not a proposal to be determined by the applicant and other parties after the hearing.
- Turangi-Tongariro Residents & Ratepayers Assn Inc. Mrs. Greenslade presented in her capacity as the Chair of the Association, and she stated that the Association was against the proposal. The Association believed that as this proposal is in a residential area there is no way that effects of such a development can be mitigated.She considered that the author of the Economic Impact Assessment (EIA) did not undertake sufficient dialogue with community groups and questions assumptions made in the EIA. Her concerns are that the employment data incorrectly reflected the reality of the employment situation in Turangi and that the benefits outlined for the economy in terms of construction and ongoing economic benefits were generous and over stated. She challenged the applicant’s statement that petrol stations ran out of fuel just before Christmas last year and attributed this shortfall to issues at Marsden Point as opposed to the proposition that the existing service stations were not being able to meet demand.
- Mr Clements stated that he and his wife owned a property at 168 Taupahi Road, and that the corner of their property abutted a corner of the subject site.They were concerned, in particular about noise and poor urban design effects on Turangi. Concerns were expressed about noise from vehicles and people using the facility, particularly at night time.Mr Clements believed that noise would be above the permitted levels in particular one- off noise events that would likely disturb sleep. He highlighted that noise from the mechanical plant was not adequately addressed in the mitigation proposals.In respect of urban design, Mr Clements believed the proposal was ‘woefully lacking in respect of the seven ‘Cs’ outlined in the New Zealand Urban Design Protocol.’
He was of the view that the subject site was an important character defining location for Turangi and that the design of the proposal did nothing to provide any sense of identity or location, and that the proposal should be placed on commercially zoned land. 
22
- Mr Nahkies highlighted various concerns in respect of the proposal. He believed it was the ‘thin end of the wedge’ if consent was granted, would commence an unavoidable commercial invasion into the ‘Riverside’ area, and that there would be pressure for future commercial activities to locate in proximity to the site.Mr Nahkies noted about the potential for heavy vehicles diverting to use the ‘Riverside’ streets as an alternative to enter and leave the subject site. He was of the view that the installation of a roundabout would detract from the efficient operation of the state highway, and that it would be highly unlikely that a roundabout would be built if it was just left to NZTA.He believed that the proposal would result in ‘planning blight’ in the area adjacent to the sites.
- Mr Howard advised us that he had a background in town planning and lived in Turangi. He outlined his concerns over the current design for this development. He was supportive of the employment opportunities but cautioned restraint in terms of accepting development at the expense of protecting the environment and amenity values of the area.His assessment of the design and location of the buildings was that the applicant needed to be more sympathetic to the wider environment rather than adopting a “cut and paste” universal design for the BP and QSR, referencing other commercial premises in Turangi such as the Hydro Café where the buildings incorporates stone work, timber and tussock landscaping. Mr. Howard believed that the location deserves better and the proposal should be declined.
- Mr Hocken stated that he was a director of Grants Motel Ltd, owners of the Settlers Motel located at 24 Te Arahori Street. Mr Hocken opposed the development in its entirety and stated that while the current lease holder, DMV Ltd, has given written approval to the proposal that this cannot be treated in the same way as consent received from the underlying landowner. It is his view that section 95D (e) should not apply to the approval received from DMV Ltd. He believed that the process followed by the applicant was incorrect and that a private plan change was the correct mechanism to use for this non- complaint proposal.
- Mr Millar as a witness for Mr O’Brien (a local business owner in Turangi), presented on behalf of Mr O’Brien. He outlined that Mr O’Brien was in support of all elements of the proposal, and believed that the proposal was for the betterment of Turangi and that economic development of this nature, was crucial for Turangi to move forward
- Ms McRae was a board member of Go Tongariro and a resident of Turangi. She was supportive of the proposal and believed that the development would create
23
improvements and beautify an under utilised area, increasing investment in Turangi and being a catalyst for future economic growth. She noted that the proposal would create much needed additional jobs in Turangi which would improve economic and social wellbeing. The proposed intersection improvements would also improve visibility for right turning vehicles and the safety and ease of use of the intersection.
• Mr Smith outlined that he had been a resident in Turangi since 2007 and supported the proposal. He was the Chairperson of Go Tongariro from mid-2013 to late 2017. He outlined that Go Tongariro has been tasked to enhance and promote the social and economic development of the Turangi/Tongariro area and referenced the Turangi Economic Development Strategy (TEDS). He pointed out that the TEDS report identified that Turangi’s continued prosperity and quality of life is dependent on a wide range of investment initiatives. He believed that the proposed development would provide Turangi with many positive opportunities, especially in the areas of; increased economic activity, injection of spending into the local economy and employment opportunities.
7.3 COUNCIL
• Ms Wood’s s42A report was taken as read. She presented a supplementary statement in response to various matters raised during the hearing.
She noted that there were no defined ‘character’ areas within the Residential Environment and that there was no specific character description for the ‘Riverside’ area.
Ms Wood outlined that provisions relating to retail and office activity in the Residential Environment and that the relevant District Plan provisions recognize that small scale businesses and local community facilities in the Residential Environment can be compatible with residential activity.
She noted that the District Plan is no longer just an effects-based plan and is a ‘hybrid’ with some effects-based performance standards and some activity-based restrictions defined.
Ms Wood outlined that the District Plan considered that service stations and quick service restaurants are included in the District Plan definition of ‘Retail.’
She considered that motels were an accommodation activity which is a commercial use of a site, and that the District Plan in respect of parking provisions, outlined accommodation activities in the same grouping as residential activities.
Ms Wood noted that the ‘Business Distribution’ objectives and policies referred to consolidating commercial activity primarily within town centre environments and that
24
there was moderate inconsistency with the relevant objectives and policies given the proposed relates to a site in the Residential Environment.
She believed the proposal in terms of material, colours, design and scale of buildings did not maintain residential character and amenity of the area.
Ms Wood considered that the proposal if granted consent could be regarded as a precedent for similar development to occur on other sites such as 24 Te Arahori Street.
Ms Wood discussed character and amenity issues and that the District Plan gives clear guidance that limitation on scale and extent of non-residential activities is necessary to ensure that residential character and amenity and coherence can be maintained.
She also considered it important that there is not a significant dispersal of non-residential activities from these environments where they are more suited or appropriate to accommodate such activities.
Ms Wood believed that adverse effects including those on character and amenity on the subject site and surrounding area are greater than minor and that residential character would not be maintained or enhanced.
She recommended that consent be refused.
- Mr Gray noted that the intersection has few actual recorded crashes. He noted his concern that the original “cross-roads” upgrade may mean that the intersection appeared safer and that people using it would be less cautious.Mr Gray was of the opinion that the existing intersection layout would not be acceptable for the proposed activities and improved cross roads would leave an unacceptable safety risk and uncertainty about capacity. Mr Gray supported the installation of a roundabout to mitigate the risks he outlined. He concluded that a suitably designed roundabout would ensure that the effects of the proposal from a traffic perspective would be acceptable.Mr Gray tabled and spoke to his proposed amendments to the draft conditions tabled by NZTA, relating to mitigation of any traffic effects.
- Mr Keys noted that the current piped stormwater was for the street system and not private properties. He advised that stormwater eventually discharged into the Tongariro River bed.He advised that there were no servicing issues that precluded consent being granted.
25
7.4 APPLICANT’S RIGHT OF REPLY
• Mr Winchester commenced the right of reply which was subsequently followed up at our request, by a written right of reply. He stated that the substance of its expert evidence and opening legal submissions is maintained by the Applicant and does not resile from that position.
Mr Winchester considered the adverse effects, such as they are, confined in terms of their significance and geographic extent, and are largely related to subjective matters or perceptions. He advised us that the extent to which the effects of the development would be materially adverse appears to depend on value judgments. He stated that there was a recurring assertion by Mr Brown and the lay submitters that commercial activities are ‘bad’. Mr Winchester further stated that the decision panel must form its own judgements on the effects of the proposal.
He stated that the motel activity falls between a residential and a commercial activity and that SH1 has a big influence on character and amenity both on the application site and the need for the Motel. The size of the site is significantly larger than the Motel and the persuasive influence of SH1 means that the site does not share the same characteristics as the rest of the Riverside area including its connection with the river, and the amenity the Riverside area has. Further, he states that there was no compelling evidence offered by experts or submitters that the proposal would have a direct or material effect on the attributes of the Riverside residential area, its character or its association with the Tongariro River.
It was submitted that if visitors’ impressions of Turangi were likely to be adversely affected by the quality of development or particular activities it is more realistic to suggest that visitors’ impressions of Turangi will be adversely affected by the lack of economic activity, investment and employment growth results.
Mr Winchester did not agree with Mr Brown’s submission regarding the aesthetic character of the area, the methodology’s he used and the suggestion that mitigation planting would not be successful. He stated that the proposed development, with the mitigation will have no significant effects on character and amenity on the immediate or wider environment.
He stated that there is no risk of the proposed commercial activity changing as this would require the need for consent and the proposed commercial use would be re-assessed.
He stated that in regard to Part 2, the officer’s report has not given sufficient weight to the development, economic or otherwise. He stated that Mr Wood’s analysis of the plan
26
provisions is correct and should be preferred over counsel’s for HPOG, the officer’s report and the officer’s response.
In regard to the traffic concerns, Mr Winchester stated that the traffic effects have been appropriately assessed, and that there are entirely orthodox and achievable design solutions to all of Mr Swears’ issues and concerns. He stated that a plan change was not required for the proposal because the application relates to a discretionary activity.
He outlined that the roundabout was not on third party land and therefore it can be identified as mitigation. The character and amenity effects referred to in the officer’s report are material and of no central importance to one of the key issues in contention. To completely discount the effects does not provide a realistic assessment of character and amenity.
In his opinion, with conditions, the development poses no challenge to the achievement of the goals outlined in the District Plan.
8. MAIN FINDINGS
The application, submissions and s42A report and the evidence presented at the hearing identified a range of effects for consideration by us.
8.1 DISTRICT PLAN
The District Plan is the primary planning document and provides the policy, objective and rule framework in respect of our consideration of this matter.
It is an operative document and it was common ground that the proposal be considered a discretionary activity.
A comprehensive assessment of the site against the District Plan provisions is included in Ms Wood’s s42A Report. This includes confirmation that the site is zoned Residential Environment together with an assessment of the activity status for both the QSR and Service Station activity. In her written response Ms Wood further described in detail the District Plan zoning framework and how the plan provisions direct development across the Taupo District. She described the four main zones or environments (Residential, Rural, Town Centre and Industrial) and advised us that ‘..each of these environments has a distinct character where zones dictated the location of certain activities. As a result, similar types of activities are clustered together such as
27
Residential activities within the residential environment, giving the area recognisable character and amenity.’ 1
We were provided with a copy of the planning map clearly illustrating the site location within the zoning framework for Turangi Town Centre and the surrounding residential and industrial environments. The Turangi commercial zoned area is concentrated on the northern side of SH1 and comprises the Turangi Town Centre Zone, Turangi Centre Pedestrian Precinct Zone and the Industrial Zone located to the south of the commercial town centre between Te Rangi Tau Tahanga Road and SH1. There is a further area of industrial zoned land on the outskirts of the town centre at the intersection of SH1 and Tokaanu Road (SH41). All the land on the southern side of SH1 including the subject site, is zoned Residential Environment.
We accept the evidence of Ms Wood on interpretation of the District Plan policy, rule and zoning framework. We consider that the Plan sets a very clear direction as to the anticipated location and character of landuse activity within the Turangi Town Centre and the surrounding residential and industrial environment. While the Plan was prepared as an effects-based instrument, modifications have occurred through recent plan changes to strengthen the planning framework and provide greater clarity as to the scale and intensity of non-residential activities, such as retail and office activities, permitted within the residential environment, and importantly the scale of effects acceptable within that residential environment. Ms Wood described these changes in detail in paragraphs 5-30 of her response statement.
The plan included explicit limitation on the scale of retail and office activity permitted within the residential environment to:
- ‘No more than 50m2 of GFA and 2 FTE that reside off site; and
- All other performance standards still apply, such as for signage, vehicle movements,bulk and location and so on.’
We accept Ms Woods evidence that these limitations are not only to sustain the viability of town centres, but also to recognise that such activities can have adverse effects on residential character and amenity. By including the provisions at the specific limits, the provisions recognise that small scale businesses and local community facilities within the residential Environment can be compatible with residential activity.2
Objective 3a.2.1 of the Plan requires ‘The maintenance and enhancement of the character and
amenity of the residential environment.’ The policies are to:
I. Maintain and enhance the character and amenity of the residential environment by
controlling the bulk, location and nature of activities, to ensure activities are consistent with
1 Response from Council Reporting Officer Louise Wood 31 August 2018, para 7. 2 Response from Council Reporting Officer Louise Wood 31 August 2018, para 26.
28
a residential scale of development, including an appropriate density and level of environmental effects;
II. To enable a range of small-scale home-based employment opportunities, and local community facilities and services to establish in residential environments, subject to:
- (a) Compatibility with residential environment amenity and character;
- (b) Avoidance of adverse effects on the function and amenity of the Taupo Town Centre,and the adjoining road network; and
- (c) A consistent scale of non-residential buildings and activities that maintain residentialcoherence and amenity.3
We find that there is very clear direction within the District Plan policy, rule and zoning framework directing the location of landuse activity and requiring management of the scale and intensity of activities in a way that ensures maintenance and enhancement of the character and amenity of the residential environment. We find that the location of a service station and QSR as proposed within the Residential Environment is contrary to the planning framework and would result in unacceptable adverse effects on character and amenity of the residential environment.
8.2 CHARACTER & AMENITY EFFECTS
We heard planning evidence from Mr Wood on the character and amenity effects of the proposal. Mr Wood limited his planning assessment to the character and amenity of the site and largely relied upon the evidence of Mr Mansergh for the wider character and amenity assessment. Mr Wood advised us that ‘the site does not exhibit strong residential character and amenity values.’4 He considered that the existing use of the site was a commercial activity heavily influenced by the adjoining SH1 corridor. His view was that ‘the fundamental nature and operation of SH1 has effects which emanate well beyond its legal or designated boundaries and strongly influence the character and amenity of the site.’5
Mr Mansergh’s evidence focuses on urban and landscape character. He concluded that the exiting landscape and urban characteristic of the site would change from its current, almost parklike appearance to one typical of a modern service station and associated QSR. He considered that this would affect the existing visual and landscape amenity associated with views of the existing site and its open spatial character.
We heard substantial evidence from Turangi residents on the character and amenity of their neighbourhood and their concerns regarding the impact of the proposal on the character and amenity of both their neighbourhood and the SH1 gateway to Turangi and the Tongariro
3 Section 42A Report Holmes Corporate Trustee Ltd 25 Te Arahori St Turangi, para 10.2.
4 Summary of Statement of Evidence of Andrew Wood on behalf of Holmes Group Trustee Limited, para 6. 5 Ibid.
29
National Park. The majority of these residents reside on the southern side of SH1 between the State Highway and the Tongariro River.
Whilst we had visited the site and surrounding environment in advance of the hearing, we undertook a second site visit during the hearing to further understand the character and amenity of the neighbourhood as described by both the applicant and Turangi residents.
We find that the Turangi residential environment between SH1 and the Tongariro River has a distinct residential character and amenity values that are highly valued by the local community and supported by the district plan policy, rule and zoning framework. Ms Wood advised us that the Plan framework clearly identified the area between SH1 and the Tongarairo River as Residential Environment. Whilst not defined as a character precinct within the Plan (and we note that the pan does not contain such precincts) the plan is explicit in terms of the scale of non-residential activities that are permitted and anticipated within the residential environment.
In addition to the guidance provided by the planning framework, we heard consistently from residents throughout the hearing process, of the character and amenity values including, in particular the natural and physical qualities and characteristics of the area that contribute to their appreciation of its pleasantness, aesthetic coherence, and cultural and recreational attributes.
We further find that the Turangi Residential Environment on the southern side of SH1 can be described as having a distinct precinct character and amenity values defined by its proximity to the Tongariro River, it’s value as a recreational gateway to the trout fishing opportunities on the Tongariro River and its mix of supporting landuse activities being predominantly permanent residents, holiday homes and recreational and accommodation activities. We do not find that the site and environment have any specific or unique non-residential characteristics that support its use as a service station and QSR.
While following questions from commissioners the applicant stated that the location on SH1 provided an ‘untapped market opportunity,’ we do not accept that this is sufficient basis on which to grant consent to a commercial activity within a residential environment outside of the defined town centre commercial and industrial zone environments
8.3 VISUAL EFFECTS
Mr Mansergh provided landscape architecture, character and amenity evidence on behalf of the Applicant. He considered the surrounding urban and landscape character and concluded that whilst the proposal will have ‘notable effect on existing landscape and urban character of the site, effects on existing visual amenity will be limited to a relatively small visual catchment.’
30
Mr Brown on the other hand concluded that the proposal would have a wide visual exposure.
We find that the visual effects of the proposal would be wide reaching and would impact not only the residential precinct to the south of SH1 but also the wider visual landscape. We do not accept that the visual effects of the proposal would be limited in spatial extent and that the visual impact could be addressed through mitigation measures such as planting, and on the exterior cladding, and colours of the building.
8.4 OUTLOOK & PRIVACY EFFECTS
Ms Wood in her s42A report identified the proposed illuminated free – standing signs as intruding into the northeast outlook from properties along Tongariro Road, northwest outlook from properties on Taupahi Road and western outlook from Te Arahori Street. Her assessment of these effects was set out in paragraphs 9.30 to 9.35 of the s42A report.
We accept Ms Woods conclusion and find there to be substantial outlook and privacy effects on the sites opposite to the northeast, and along Te Arahori Street. Whilst Mr Wood considered that the mitigation planting proposed by Mr Mansergh resolved the concerns raised in respect of outlook, we find that there are outlook effects on the wider residential environment not addressed by the proposed mitigation planting.
We accept that with the scale of fencing and planting proposed, the privacy effects on the immediately adjoining properties could be limited, but that the wider outlook and privacy effects would remain.
8.5 TRAFFIC EFFECTS
We received a significant volume of expert evidence regarding traffic effects upon road network safety and efficiency by Mr Apeldoorn, Mr Gray and representatives for the NZ Transport Agency. This matter was also raised by submitters, those in opposition concerned about the potential impact on safety of road users, pedestrians and cyclists from the significant increase in traffic generated by the proposal and adverse effects on character and amenity from the increase in vehicle movements and associated nuisance effects.
Prior to the hearings on the 26 June 2018, the Applicant submitted a revised plan for the development, proposing a roundabout controlled intersection to mitigate increased traffic movements and improve safety outcomes. During the hearing a set of recommended conditions of consent were provided to us in relation to traffic effects and covered matters including: NZTA Approval (SH1 works), NZTA Safety Audit, lighting plans, signage, landscaping, repairs to the road reserve and a condition precedent relating to an approved roundabout needing to be in place before the BP and/or the QSR commencing trading activities.
31
While we noted the concerns of the NZ Transport Agency that a more detailed design of the roundabout would have been more desirable prior to a final decision on the proposal, we accept the peer review of Mr Gray, dated the 31 August 2016, that subject to a suitably designed roundabout being operational, and appropriate provisions for managing construction and accommodating pedestrians and through cyclists, the effects of the proposal on the traffic road network would be acceptable.
We find that the proposed mitigation measures, included as draft conditions of consent, would mitigate traffic effects and that the proposal will have no more than minor effects on network safety and efficiency. However, we also note the uncertainty as to an acceptable roundabout solution being feasible within the exiting road corridor and the need to acquire additional private land in order to construct the roundabout.
8.6 NOISE EFFECTS
The local ambient sound environment is dominated by traffic from State Highway 1.
We have relied on the expert evidence of Marshall Day Acoustics (MDA) and their assessment of the potential noise effects from the proposal. This matter was also raised by a number of submitters opposing the proposal, their main concerns relating to the 24/7 nature of the development and the nuisance noise effects of visitors and vehicles to the site and operational noise of the restaurant.
In the report prepared by Mr Bell-Booth from MDA, he concluded that the site sound emissions from the boundary of the nearest residential receivers is calculated to comply with the Taupo District noise limits with the proposed mitigation measures in place. Written approval had been obtained from landowners/occupiers of 9, 11 and 13 Te Arahori Street and the occupier of 24 Te Arahori Street and with this approval, effects on these locations cannot be considered. While approval had been given by the lease holder of the property at 24 Te Arahori Street, the landowner has not given approval and has submitted against the proposal.
We are of the opinion that the effects of this proposal need to be considered at the location of 24 Te Arahori Street given that land owners have an interest in these matters. Mr Bell-Booth stated in his evidence dated 15th August (Point 81) that predicated noise levels at 24 Te Arahori Street, without the proposed mitigation measure of an acoustic fence, would exceed the Taupo District Plan night-time noise limit by 7 decibels (noting this is a level which is less than the ambient sound level).
Although adverse effects associated with exceeding noise limits will be limited to those properties immediately adjoining the site on Te Arahori Street, the impact of adverse nuisance
32
noise effects (as mentioned in the Character and Amenity Effects Assessment) also needs to be considered.
While the ambient noise level from the State Highway is the dominant background noise, it is reasonable for residents in a Residential Environment to expect that any new sources of noise, especially at night time, do not exceed the Taupo District Plan noise performance standards.
When considering the potential for nuisance noise to impact the sensitivity of the receiving environment, the cumulative impact of effects over time, and that the night time noise limit is expected to be exceeded at 24 Te Arahori Street, we find that the noise effects of the proposal would be more than minor.
8.7 HAZARDOUS SUBSTANCES
The proposal would establish a new hazardous facility within the Residential Environment. Several submitters raised concerns about risks associated with spills, contamination of ground water, vicinity to the Tongariro River and requested confirmation of an adequate water supply for firefighting purposes.
The management and controls associated with the use and storage of hazardous substances is required to be managed in accordance with the Health and Safety at Work (Hazardous Substances) Regulations 2017 for work related risks and the Hazardous Substances and New Organisms Act for non-work, public, health and environmental risks.
The application included a Construction Environmental Management Plan (CEMP) which covered the environmental controls to be used during the construction of the BP Service Station. Mr Hellburg outlined in his statement of evidence, that the preliminary design for the proposed service station was in accordance with the relevant regulations and required measures to avoid accidently spilled hydrocarbons entering the environment and that the proposed stormwater management concept represents industry best practice, meeting all the requirements of regulators on a national, regional and district level.
Along with the CEMP, the application included BP’s “NZ Operational Environmental Management Plan” which dealt with on-site stormwater drainage systems and BP’s onsite “Emergency Flipchart” which outlined the company’s procedures in the event to a range of emergency situations. Mr Chandler outlined references to legislation to which BP designs and operates its sites.
The s42A report discussed the environmental management controls proposed for the construction phase and the subsequent storage and use of hazardous substances on the site. In this report, Mr Keys recommended conditions requiring detailed design of the stormwater
33
disposal system and construction of the stormwater disposal system prior to the commencement of trading and that firefighting water infrastructure be provided for to ensure there is sufficient water for firefighting purposes.
The advice outlined in the s42A report was that the potential adverse effects of establishing a hazardous facility on the application site can be managed and mitigated, with effects no more than minor.
We find that compliance with regulatory requirements and proposed controls would ensure that risks associated with proposal would be no more than minor and can be adequately managed on an on-going basis.
8.8 BUSINESS DISTRIBUTION / PRECEDENT EFFECTS
Mr Heath, a Property Consultant, Retail Analyst and Urban Demographer provided evidence on the local economy, the retail context and the economic impacts and benefits of the proposal. He also responded to questions from Commissioners on the scale of retail activity at the proposed site and the impact of the proposal on the existing Turangi town centre. Mr Heath was the only expert to provide evidence on business disruption.
He advised us that the location of the proposal on SH1 would generate positive economic benefits for both Turangi and Taupo district. However, he noted that these benefits were directly reliant on the market capture opportunity associated with the location of the site on SH1:
‘These benefits are not transferable to another site in the town centre or industrial zoned land given the fundamental link to SH1 and the site’s ability to draw passing traffic direct from this highway – a crucial aspect of the development’s future success and the level of economic benefit for the community.’6
He also advised us that the nature of the service station activity was such that it was not an activity suited to a town centre location. Mr Heath stated that petrol stations are not a fundamental component of a town centre’s retail composition, functionality, viability or environment.
As stated in paragraphs 8.2 of this decision, we are not satisfied with reliance of the service station activity on the market capture opportunities of SH1 as justification for its proposed location within the residential zoned environment. Granting consent to the proposal on the grounds proposed by the applicant would set a precedent for such activities to be located
6 Statement of Evidence of Timothy James Heath on behalf of Holmes Corporate Trustee Limited. 34
anywhere across the Taupo District on a residential zoned site with frontage to the state highway network. Based on the position put forward by the applicant, such service station and QSR activities could conceivably locate almost anywhere on the state highway network.
We are also concerned with the overall scale and intensity of commercial activities located on the proposed site and the service station activity being in combination with the QSR. Under questioning from Commissioners, Mr Heath advised us that whilst he considered the service station an appropriate activity for the proposed location on SH1 because it ‘captures spend not already being spent in Turangi’ he also advised us that it would be ‘difficult to justify any other type of retail activity’.
We are not satisfied that the location of the proposed service station activity and QSR will not adversely impact the Turangi town centre. There are no unique characteristics or circumstances associated with this particular site and proposal that warrant the grant of consent. We are concerned that granting consent to the proposal will set a precedent in support of the establishment of further retail activities within the residential environment that can demonstrate reliance on SH1 market capture opportunity as justification for their presence on SH1.
We accept the evidence of Ms Wood on the precedent effect in both her s42A report and response statement. In particular Ms Wood identified the sites at 24 Te Arahori St to the northeast of the subject site (Settlers motel) and the Club Habitat site on the opposite side of SH1 being sites with similar characteristics to the subject site. 7
8.9 EARTHWORKS & CONSTRUCTION EFFECTS
An Earthworks and Sediment Control Plan (ESCP) was submitted with the application. The ESCP described the sediment and erosion control measures to be implemented, program of works, hours of construction and stated that construction noise would be managed in accordance with the permitted activity for construction noise. The plan did not cover the time of the year or the duration of the proposed construction. A preliminary Geotechnical Assessment concluded that the proposed BP Station site was suitable for the intended development.
The proposal would infringe the Taupo District Plan earthworks 1.5 vertical ground alternation limit by filling of an additional 0.5m above the limit required to create the earth bunds between the motel buildings and the BP Service Station. We were advised that the proposed earthworks would not change the overall ground level of the site given the localised area these works are confined to and the distance of these works from the boundaries of the site.
7 Response from Council Reporting Officer Louise Wood, para 50-51. 35
We note that there were no concerns raised in the submissions regarding the proposed earthworks for the development, but several submitters noted safety concerns relating to construction traffic and hours of operation. The reporting officer in the s42A report considered that the time of the days outlined in the ESCP for construction works to have temporary adverse effects on the amenity of the area, given the residential and accommodation activities in the immediate vicinity.
We find that the effects of the earthworks can be mitigated to minimal level with the appropriate measures in place as outlined in the ESCP. We concur with the recommendation in the s42A report that the hours for construction be limited to minimise the temporary adverse effects on the residential area, with a construction noise management plan, including hours, could be adequately managed and mitigated.
8.10 INFRASTRUCTURE / SERVICING EFFECTS
The proposed development would connect to the Councils reticulated water and wastewater supply. All stormwater from the proposed site was to be disposed of onsite via soakage areas. The runoff from the station forecourt and heavy vehicle bay would be diverted to an oil separator system prior to discharge to the proposed stormwater system.
Mr Keys had reviewed the proposal and concluded that subject to relevant conditions requiring detailed design of the storm water disposal system and connections to Council’s infrastructure, the proposed development can be adequately serviced.
We find that the proposed development can be adequately serviced without any adverse effects.
8.11 SUBDIVISION
We note that the subdivision proposal is to accommodate the three distinct activities both existing and proposed on the subject site. If land use consent was granted, then the subdivision proposal is considered to be logical to accommodate the proposed uses.
Whilst some issues have been raised by Ms Woods and the New Zealand Transport Agency, they could be resolved through the imposition of conditions.
Overall, we find that there are no effects greater than minor if subdivision consent was granted.
36
8.12 POSITIVE EFFECTS
Many submitters in support of the proposal outlined that they believed the proposal would result in positive economic benefits for Turangi in terms of employment creation both through construction activity and ongoing operation of the proposal.
The applicant, through the evidence of Mr Heath, outlined that there would be economic benefits of up to $2.6 million through construction and approximately $4 million per annum as a result of ongoing operation of the facility. Furthermore, we were advised that up to 62 jobs would be created, and that about 70% of those jobs would be local.
Several submitters in opposition questioned whether the economic benefits as outlined by the applicant would be to the level stated. We do note however that no alternative economic impact evidence was provided to us.
On balance, we are of the view that there would be economic benefits as a result of the proposal being granted consent and implemented. However, taking an overall broad view of the proposal and the policy and objective framework of the District Plan, we are of the view that the economic benefits do not outweigh or override the policies and objectives of the District Plan particularly in relation to character and amenity.
The community and residents are entitled to rely on the District Plan policies and objectives and accordingly we believe in this situation, that the positive benefits do not overcome or address concerns about the potential adverse effects on character and amenity of the ‘Riverside’ area.
We also note that the construction of a roundabout would have positive effects in addressing road safety in the locality. However, we also observe that Mr Apeldoorn, notwithstanding his professional opinion that the roundabout would assist in addressing road safety concerns, was also of the view that the proposal did not require a roundabout. He noted that his original opinion that the intersection with some upgrading could appropriately cater from a transport and road safety perspective.
9. DISTRICT PLAN: OBJECTIVES & POLICIES
9.1 DISTRICT PLAN
Ms Wood set out a detailed assessment of the proposal against the District Plan policy framework in paragraphs 10.1 – 10.47 of her s42A report. Mr Wood set out his assessment in paragraphs 60-63 of his statement of evidence. As stated in section 8.2 of this decision, we find that there is clear direction within the district plan framework for assessment of the effects of
37
retail and commercial activities in the residential environment. At paragraph 47 of her response statement, Ms Wood advised us that the petrol station and QSR activities are to be assessed as retail activities within the district plan framework:
‘I note firstly that service stations and fast food restaurants are included in the definition of ‘retail’ in the District plan, and that the definition of ‘commercial activity’ includes ‘the range of commercial activities including office and retail activities’. Furthermore, the rules, objectives, policies and explanations that are discussed in my report for the Residential Environment and Business Distribution do not refer specifically to particular types of retail such as service stations, and I do not believe that the District plan requires service stations to be considered or assessed differently to general retail activity (when looking at the residential environment).
She also advised us that the business disruption objectives, policies and explanation further direct us to ensure that commercial activities are located principally within town centre environments.
We do not accept the Applicant’s position that:
‘…the relevant objective and policy framework is not directive in nature, in that it does not single out activities such as service stations by the use of ‘avoidance’ language. The framework is not absolute in nature and should not be interpreted as such. Rather it enables a site-specific consideration of effects and issues depending upon the context. Whilst it is relatively firm, I do not consider that the framework is rigid in terms of discouraging non-residential activities from establishing in the zone’.8
Following a comprehensive consideration of all of the residential environment objectives and policies, the rules and explanations and the zoning framework for the Turangi Town Centre and the Residential Environment, in combination with the scale and intensity of the proposal, we find that the proposal to locate the service station and SQR in the residential environment is contrary to the District Plan Objectives and Policies.
10. OTHER MATTERS
10.1 NATIONAL POLICY STATEMENTS
The s42A report outlined that there were five National Policy Statements, but none were considered applicable in respect of the proposal before us.
8 Statement of Evidence of Andrew Wood on Behalf of Holmes Group Trustee Limited, para 62, 15 August 2018. 38
10.2 NATIONAL ENVIRONMENTAL STANDARDS
We were advised that no such standards applied in respect of the proposal. In particular the ‘National Environmental Standard for Assessing and Managing Contaminants in Soil to Protect Human Health’ did not apply as no activity described in the HAIL is currently or has been carried out on the subject site nor is it production land. The s42A report describes in more detail the situation and the non-applicability of the NES.
Based on this advice and that no issues were raised with us at the hearing, we do not consider the matter any further.
10.3 WAIKATO REGIONAL POLICY STATEMENT, REGIONAL PLAN & REGIONAL LAND TRANSPORT PLAN
The Waikato Regional Policy Statement (RPS) provides an overview of the resource management issues in the Waikato region and sets the direction and foundation of the regional and district plans which must give effect to the RPS. Among other matters the RPS highlights the significance of the regional roading network and the potential for new activities to potentially generate adverse effects.
We were advised that State Highway 1 was a regionally significant transport corridor within the Waikato region
In respect of the Waikato Regional Plan it seeks to avoid, remedy or mitigate adverse effects on the function of significant transport corridors from such things as ribbon development and from additional access points along key transport corridors.
The s42A report noted that the Waikato Regional Land Transport Plan set out the strategic direction for land transport in the Waikato region over the next 30 years. A key priority included improving safety.
We were advised both by Mr Apeldoorn and Mr Gray that the establishment of a roundabout at the intersection would mitigate potential adverse transportation safety effects from the proposal and this would be consistent with the provisions on road safety in the regional policy/plan documents. Whilst Mr Swears generally supported in principle the installation of a roundabout, he wished to see the detailed design prior to agreeing to such a mitigation.
10.4 GOVERNMENT POLICY STATEMENT ON LAND TRANSPORT
We were advised by Ms Wood that The Government Policy Statement on Land Transport 2018 (GPS) helped to guide investment in transport by providing a longer-term strategic view of how
39
the transport network is prioritised and why. She noted that one of the key strategic priorities of the GPS 2018 was to ensure a safe transport system, free of death and serious injury.
The applicant’s proposal to construct a roundabout at the intersection of State Highway 1, Te Arahori Street and Pihanga Road was considered by Ms Wood to mitigate the potential adverse transportation safety effects of the proposal and as such, the proposal was considered to be consistent with the priorities of the GPS. We do not disagree with that conclusion.
10.5 TURANGI ECONOMIC DEVELOPMENT STRATEGY
We noted that there were two submissions in support that referred to the Turangi Economic Development Strategy. The report had been commissioned by Go Tongariro – a Board whose mission statement is to enhance and promote the social and economic development of the Turangi / Tongariro area. We further noted that the strategy had been prepared by RPS Consultants NZ Ltd and only for the use of Go Tongariro. Ms Wood outlined in her report that there was a copyright disclaimer that stated that no third party shall use or rely upon the report.
Having considered this and that the strategy had not been subject to any consultation and engagement, we have not considered the strategy as part of our deliberations and decision.
10.6 PROPERTYVALUES
Some of the submissions highlighted concerns regarding the proposal resulting in lowering of property values in the residential area in the ‘Riverside’ area. We wish to note that property values are not a resource management matter that can be considered when considering and determining applications for resource consent.
11. SECTION 104: RESOURCE MANAGEMENT ACT 1991
Section 104 outlines the matters that the consent authority must have regard to, subject to Part 2 of RMA which include the following;
- Any actual and potential effects on the environment of allowing activity; and
- Any relevant provisions of a national environmental standard;
- Other regulations;
- Any relevant provisions of a national policy statement;
- Any relevant provisions of a regional policy statement, or proposed regional policy statement;
- Any relevant provisions of a plan or proposed plan; and
- Any other matters the consent authority considers relevant and reasonablynecessary to determine the application. 40
Section 104B provides that the consent may be granted or refused, and, if consent is granted, that conditions may be imposed on the consent under section 108.
From all of the above, we have considered matters to be given regard to in considering the proposal in terms of the RMA.
12. PART 2: RESOURCE MANAGEMENT ACT 1991
Mr Winchester outlined that it was appropriate for us to give consideration to Part 2 matters as part of our consideration and decision making in respect of the proposal.
Ms Ongley noted that the decision-maker is not prohibited from considering Part 2 although she further noted that the District Plan and recent plan changes had been prepared having regard to Part 2. Ms Ongley had referred us in her legal submissions, to the Court of Appeal decision being Davidson Family Trust v Marlborough District Council [2018] NZCA which stated that if the operative plan had been prepared having regard to Part 2, then referral to it would not add anything to the evaluation of an application.
We have given consideration to Part 2 matters in addition to our evaluation of the District Plan objectives and policies as it was considered helpful to further test our consideration and evaluation of the District Plan provisions and the conclusions we have reached in respect of the relevant policies and objectives.
• Section 5 – Purpose
Section 5 details the purpose of the Act which is to achieve sustainable management. Sustainable management is defined as ‘…. means managing the use, development, and protection of natural and physical resources in a way, or at a rate, which enables people and communities to provide for their social, economic, and cultural well-being and for their health and safety while – …’.
Having considered the proposal, we are of the view that while it will provide for some people and parts of the community to provide for their economic and social well-being, we do not believe that this should be at the expense of the residential environment envisaged by the District Plan and enjoyed by residents of the ‘Riverside’ area. It is a distinct residential environment bounded by State Highway 1 and the Tongariro River that apart from various accommodation facilities which we regard as being residential in character and scale; and an existing café and tackle shop; there are no other commercial type activities.
41
The current environment allows residents to provide for their social and economic well-being, and we do not believe that the proposal on balance would achieve the sustainable management of natural and physical resources.
There are opportunities provided for commercial activities to the west of the State Highway.
• Section 6 – Matters of National Importance
This section of the RMA outlines matters of national importance that should be recognised and provided for. No such matters were raised with us, and the site was not close to any outstanding natural features.
• Section 7 – Other Matters
Section 7 outlines various matters that decision makers shall have regard to achieve the purpose
of the RMA.
Three matters of relevance include “the efficient use and development of natural and physical resources,” “the maintenance and enhancement of amenity values,” “maintenance and enhancement of the quality of the environment and any finite characteristics of natural and physical resources”.
We consider that the proposal will have adverse effects on the character and amenity of the ‘Riverside’ area of Turangi given the policy and objective framework of the District Plan, which has a strong focus on residential character and amenity and does not generally provide for commercial activities of the scale proposed by the applicant. The proposal, does not in our opinion, contribute to the maintenance and enhancement of amenity values or the quality of the residential environment.
We are of the opinion that the proposal is not compatible with the residential environment and the current land use pattern outlined by the District Plan.
• Section 8 – Treaty of Waitangi
This section requires those involved in exercising RMA functions and powers relating to managing the use, development and protection of natural and physical resources shall take into account, the principles of the Treaty of Waitangi.
No matters relating to the Treaty of Waitangi were brought to our attention.
42
13. CONCLUSION
We have considered all matters placed before us including all application documentation, evidence, submissions and subsequent statements made by the various parties at the hearing and the s42A report and associated reports from Council staff, together with the relevant RMA and Plan provisions.
While we consider that matters relating to traffic effects, hazardous substances, servicing, earthworks and construction, outlook and privacy could be addressed by relevant conditions of consent, we are of the opinion that the proposal is contrary to the overall objectives and policies of the District Plan particularly those relating to the Residential Environment.
The scale of non-residential activities to be enabled in the residential environment has a clear focus on ensuring activities are consistent with a residential scale of development and are compatible with residential amenity and character. In addition, we find that the proposal will not contribute the pleasantness, aesthetic coherence and general residential characteristics of the ‘Riverside’ area.
We do not believe that the subject site and environment have any particular non-residential characteristics that would support its use for a service station and QSR.
We also note that the visual effects of the proposal would be wide reaching and would impact on the ‘Riverside’ residential area and the wider visual landscape.
While we acknowledge that the proposal will result in positive economic benefits, we do not believe that these override the District Plan objectives and policies and the concerns we have expressed in respect of character, amenity and visual effects.
Overall, we believe the proposal does not meet the purpose and principles of the RMA being Part 2 matters and the policies and objectives of the District Plan and that there are effects as discussed in this decision, that cannot be adequately mitigated, remedied or avoided. Consent to the applications is therefore refused.
14. DECISION
That pursuant to sections 104 and 104B of the Resource Management Act 1991, the Taupo District Council refuses land use and subdivision consent to the applications by Holmes Corporate Trustee Limited, to establish and operate a BP Service Station and Quick Service Restaurant and undertake a subdivision, in respect of a property described as 25 Te Arahori Street, Turangi, being Lot 2 DP 88824.
Consent is refused for the reasons outlined in this decision but include the following:
43
- The proposal is inconsistent with the purpose and principles of the Resource Management Act 1991, as it will have adverse effects on the character and amenity of the ‘Riverside” area of Turangi given the policy and objective framework of the Taupo District Plan. The plan does not generally provide for commercial activities of the scale proposed, and the proposal does not contribute to the maintenance and enhancement of amenity values or the quality of the residential environment.
- The proposal is contrary to the relevant objectives and policies of the Taupo District Plan in that commercial activities of the scale and extent proposed are to be principally located within town centre environments, and that the District Plan clearly requires non- residential activities to be of a scale that maintains residential coherence and amenity; and to be compatible with the amenity and character of the residential environment.
- It is considered that the proposal will result in precedent effects that, should the application have been approved, would likely lead to adverse effects on the environment, and result in the anticipated environmental outcomes of the Taupo District Plan not being able to be achieved, in respect of the residential environment.
Date: 12 October 2018
Bill Wasley Commissioner Panel Chair
Rosanne Jollands Member
Kim Hardy Member
44
Attachment 1: Summary of submissions received
| Submitter Number | Submitter Name | Support/Oppose | Summary | 
| 001 | Paul Clements & Jane Clements | Oppose | AEE inaccuracies and omissions | 
| 002 | Carl and Jackie Bergstrom | Oppose | AEE reasoning incorrect | 
| 003 | Nicola Moore | Oppose | Effects on Tongariro River and employment, recreation and tourism in this area Adverse noise effects | 
| 004 | Donna McRae | Support | Financial benefits to Turangi, more money into the town, more employment. | 
| 005 | Terry John Moore | Oppose | Adverse safety effects at the intersection from congestion | 
| 006 | Robert South | Support | Proposal will facilitate employment and provide service opportunities for a town in need of both. | 
| 007 | Hamish Turley | Support | Proposal will provide jobs and opportunity for the economy of Turangi. | 
45
008 Michael Rogers Support
Proposal will enhance economy of the town, employment.
Will stop south bound traffic having to cross SH1 for fuel.
| 009 | Tom Coltman | Support | No adverse effects of the proposal | 
| 010 | Jo Gates | Support | Proposal will create more jobs in Turangi Improve intersection to turn off SH1 into Turangi | 
| 011 | Paul Barnett | Support | Proposal will create more jobs in Turangi, encourage tourism and spending in Turangi | 
| 012 | Lorraine Wilson | Oppose | NZTA concerns, safety effects at intersection and underpass Noise effects, odours, excessive lighting, rubbish storage (already issue over road), hazardous facility and possible spills into stormwater system – Tongariro River Employment figures unsubstantiated and no assessment of effects on current employment rate in Turangi | 
| 013 | Ian Bellew | Support | Opportunity for development and growth outweighs negatives | 
| 014 | Bevan Holdaway | Support | Economic growth for Turangi, capacity for tourism and local employment opportunities. | 
| 015 | Fynala van der Aa | Support | Economic growth for Turangi for businessses and job creation | 
| 016 | Sam Coxhead | Oppose | Adverse safety effects at the intersection, from distraction and confusion | 
| 017 | Anne Natasha Nahkies | Oppose | Impact on residential River area of Turangi | 
46
018 Graeme Earle Nahkies
Oppose
Incompatible land use into a quiet residential zone Adverse impacts on safety and efficient operation of SH1
Traffic volumes underestimated, holiday periods not considered
Complexity of traffic movements at the intersection Increased congestion in Te Arahori Street
Increase in traffic using Taupahi Road, increasing safety hazards, deterioration in environmental quality in Taupahi Road
Negative impacts on Turangi town centre and current businesses from proposal removing need to turn into Turangi town centre for services
| 019 | Michael Anthony Fransham | Oppose | Adverse effects on the amenity of the area to southeast of SH1 Natural divide formed by SH1 separates residential from Turangi town centre and proposal extends into the residential area | 
| 020 | Pomare Serfonfein Edwards | Support | The landscaping will break the built form and visually enhance entrance to Turangi. Employment opportunities. | 
| 021 | Maxine Puhi | Support | Improvements to intersection will improve safety. Improvement of economic and social wellbeing with particular regard to job creation. | 
| 022 | Brian Giddy | Oppose | Should not allow industrial activity in a residential zone Heavy traffic involved with truck stop with increased car movements at intersection will create serious safety issues Adverse impacts on Taupahi Road amenity from nuisance effects | 
| 023 | Christopher Wallace James | Oppose | Concerns about pollutants from spills and run off on waterways Impact of high volume of heavy vehicles day and night on amenity of the area | 
| 024 | Ian Douglas & Frances Rose Jenkins | Oppose | Adverse effects on character and peaceful amenity of the area, native birdlife Noise effects – from construction and once development operating, heavy traffic noise | 
| 025 | Oliver Nicholson | Support | Any competition with Z station is a plus. Improvements to intersection will improve safety. | 
47
026 David & Eileen Pomeroy
Support
Economic growth for Turangiand local employment opportunities.
Proposal will increase profile of Turangi.
Northbound traffic will have easier access to fuel, food and rest.
| 027 | Dr. Mark Cosgrove | Oppose | Proposal goes against trend of diverting trucks, service stations away from centres and residential areas Position & topography of Turangi creates an inversion layer trapping pollutants, proposal will increase vehicles / trucks to the site, lowering air quality – adding to health problems, especially for at-risk children Proposal is a health-damaging project, detrimental to the long-term health of people living in Turangi | 
| 028 | Lucy Kranenburg | Support | Economic growth for Turangi and local employment opportunities. | 
| 029 | Steve and Dorene Mills | Support | Turangi needs more development. | 
| 030 | Nicole Dakin | Support | Economic growth for Turangi and local employment opportunities. | 
| 031 | Christine Mary Dally | Support | Economic growth for Turangi and local employment opportunities. | 
| 032 | Luke Nelson | Support | Support whole development. | 
| 033 | Sally Nelson | Support | Economic growth for Turangi and local employment opportunities, progress. | 
| 034 | Graham R. Whyman | Support | Turangi needs more development. | 
| 035 | Dale Perry | Support | Economic growth for Turangi and job creation. | 
| 036 | K. S. Mullooly | Support | Improved traffic safety, and job opportunities. | 
| 037 | Michael Konui | Support | Economic growth for Turangi and job opportunities. | 
| 038 | Tama Sperling | Support | Proposal will create more jobs in Turangi. | 
| 039 | Tiahuia Clemas | Support | Economic growth for Turangi and job opportunities. | 
| 040 | Kathleen B. Whyman | Support | Turangi needs more development. | 
| 041 | Kevin Morey | Support | Economic growth for Turangi and job opportunities. | 
48
| 042 | Steven Howard | Oppose | No assessment of existing environment | 
| 043 | Linda Rae | Support | Turangi needs more development. | 
| 044 | John Nicholas Miles & Kenneth Blair Miles | Oppose | Traffic hazard at intersection | 
| 045 | Enterprise Great Lake Taupo | Support | Turangi has complex social and economic challenges – particularly lack of employment opportunities. Proposal has many positive outcomes for its economy and through employment opportunities. | 
| 046 | Richard Garth Oakden | Support | Turangi needs this investment, proposal will promote Turangi’s central location. Proposal gives opportunity for entrance to Turangi to have good traffic flow design, encouraging people to stop in Turangi. Proposal will provide much needed job opportunities. | 
| 047 | Thelma Puketapu | Support | Economic growth for Turangi and employment opportunities. | 
49
| 048 | Tiani Tekura | Support | Economic growth for Turangi and employment opportunities. | 
| 049 | Andy Hema | Support | Economic growth for Turangi and employment opportunities. | 
| 050 | Wayne Smith | Support | Proposal will make Turangi township more visible to passing traffic and provide Turangi with positive opportunties during construction stage and ongoing. Proposal consistent with objectives of TEDS. Economic growth and employment opportunities. Proposal makes good use of under utilised land. Noise and traffic effects can be mitigated. | 
| 051 | Roger Wills | Support | Proposal will lift Turangi’s profile and provide economic benefits through employment opportunities. | 
| 052 | Dan & Prue Stevenson and Family | Oppose | SH1 forms a natural separation between the commercial town centre and residential / recreational area to river side of SH1 and current zoning recognises this. | 
| 053 | Danny Pickett | Support | Economic growth for Turangi and employment opportunities. | 
| 054 | Stuart Bagley | Support | Economic growth for Turangi and employment opportunities. | 
| 055 | Rachel Pickett | Support | Economic growth for Turangi and employment opportunities. | 
| 056 | Bertina Nel | Support | Fully support the application. | 
| 057 | Bryan Lawrance | Support | Proposal will provide important facilities for long distance heavy transport industry. | 
| 058 | Geraldine Kernohan | Support | Fully support the application. | 
50
| 059 | Jeff Kernohan | Support | Fully support the application. | 
| 060 | Lauren Vonda Kernohan | Support | Proposal will create employment and create competition with another fuel and food provider. Improved flow of traffic over both sides of SH1. | 
| 061 | HG Macdonald and GE Shieff | Oppose | Turangi should be recognised as quiet but growing town, and for its natural beauty and outdoor activities. Adverse traffic safety effects at intersection. | 
| 062 | Carrol & John Thorby | Support | Job creation, boost business. | 
| 063 | Destination Great Lake Taupo | Support | Enhance sense of ‘entrance’ to Turangi. | 
| 064 | Courtney Faigan | Support | Economic growth for Turangi and employment opportunities. Improvements to intersection will improve traffic safety. | 
| 065 | Robert Rosemergy | Oppose | SH1 realignment in 1960s preserved integrity of Taupahi Rd residential area. | 
51
| 066 | Sally Anne Downes | Oppose | Adverse effects on residential character and amenity of the area from 24/7 commercial activity, large number of vehicle movements, light and noise pollution, hazardous substances. Proposed development better situated in commercial zone where effects will not undermine intent of residential zoning. Light pollution from signage, buildings and vehicles. | 
| 067 | Turangi-Tongariro Residents & Ratepayers Assn. Inc. | Oppose | There are better opportunities for economic development in Turangi with tourism and associated markets. | 
| 068 | Helen Smith | Support | Economic growth for Turangi and employment opportunities. Utilisation of vacant land. | 
| 069 | Beverley Cameron | Support | Proposal will bring much needed employment to Turangi. | 
| 070 | Chenara Cameron | Support | Economic benefits for Turangi. | 
| 071 | Malvene Hale | Support | Employment opportunities for Turangi. | 
| 072 | Iris Rawhiti | Support | Employment opportunities for Turangi. Improve entrance to Turangi town. | 
52
| 073 | Tim Edgeler and Roz Thompson | Oppose | Adverse noise impacts from multiple heavy vehicles, refrigeration on vehicles. Loss of expenditure from southbound traffic that would normally turn right into Turangi town, redistribution of economic activity not new activity. Poor urban design, proposal could encourage drift of other commercial activity to east side of SH1. | 
| 074 | Te Ngaehe Wanikau | Support | Economic growth for Turangi and employment opportunties. | 
| 075 | Sarah Shaw | Support | Improvements to intersection will improve safety. Recommend roundabout at intersection. | 
| 076 | Grants Motels Limited | Oppose | Industrial nature of the proposed development unsuitable within this residential area, it should be located in commercial / industrial zone. Potential for rubbish generation from the QSR. | 
| 077 | Russell Morgan | Support | Economic growth for Turangi and employment opportunities. | 
53
| 078 | Holmes Proposal Opposition Group Inc. | Oppose | 181 members | 
| 079 | NZ Transport Agency | Oppose | Proposal will affect intersection operation and increase risk of high severity crashes. Projected traffic growth and design speeds not considered adequately. Height of acoustic fenceing proposed effect on sight lines for vehicles using adjacent accesses. All lighting should be oriented awya fro SH1 and local roading network and subject to road safety audit. Design and construction of any works asociated with road network be subject to safety audit Subdivision easement boundaries should not be confirmed until locations of access from SH1 (if any) and Te Arahori Street confirmed as least adverse effects on road network. | 
| 080 | Fire and Emergency New Zealand (FENZ) | Support with condition? | Seek confirmation that existing water supply sufficient capacity for firefighting – recommends condition of consent. | 
| 081 | Terry K. O’Brien | Support | Proposal good for Turangi. | 
54
| 082 | John Morse Toogood | Oppose | Turangi in a unique position and character – famous trout fishing rivers, Lake Taupo, mountains, Tongariro National Park, Trout Centre, outdoor activities, Army Museum, autumn colours in Turangi. Proposal will adverse affect the character of the residential area to east of SH1 and will be detrimental to look and appeal of Turangi. | 
| 083 | Naomi Goodall | Support | Employment benefits for Turangi. | 
| 084 | David Beck | Support | Benefits for Turangi. | 
| 085 | Taylor-Anne Osborne | Support | Employment benefits for Turangi. | 
| 086 | Louisa Apanui Waiti | Support | Employment benefits for Turangi, encourage visitor spending in Turangi. | 
| 087 | Arekatera Mellon | Support | Employment benefits for Turangi, encourage visitor spending in Turangi. | 
| 088 | Monica Taylor | Support | Employment | 
| 089 | Jenny Nelson | Support | Economic growth for Turangi and local employment opportunities. | 
| 090 | Christine Perry | Support | Employment and progress for Turangi. | 
| 091 | Tim Brosnahan | Support | |
| 092 | Debbie Kernohan | Support | Economic growth for Turangi and local employment opportunities. | 
| 093 | David William Kernohan | Support | Fully support the application. | 
| 094 | Graeme Smallman | Support | Economic growth for Turangi and local employment opportunities. | 
| 095 | Tania Smallman | Support | Economic growth for Turangi and local employment opportunities. | 
| 096 | Jennifer Robyn Boothby | Support | Economic growth for Turangi, positive progress needed. | 
| 097 | Melissa Lane | Support | Economic growth for Turangi and local employment opportunities. | 
| 098 | John Andrew | Support | Fully support the application. | 
| 099 | Treive Andrew | Support | Fully support the application. | 
| 100 | Olwyn McNickle | Support | Economic growth for Turangi and local employment opportunities. | 
| 101 | John McNickle | Support | Economic growth for Turangi and local employment opportunities. Recommend reducing speed limit. | 
55
| 102 | Paula McRae | Support | Economic growth for Turangi and locatl employment opportunities. Providing additional rest area for right turning vehicles. | 
| 103 | Frank & Carol Harwood | Support | Fully support the application. | 
56
 
							
